Gadgetfreak :: Not Just Tech
design / architecture

11 Boxes – Ένα σπίτι που έρχεται…’κουτί’!

Τι είναι το σπίτι;  Πολλές φορές λέμε ένα… ‘κουτί’!

Αρχιτέκτονες: Keiji Ashizawa Design
Τοποθεσία: Saitama, Ιαπωνία
Αρχιτέκτονας Project: Keiji Ashizawa
Μηχανικός Δομής: Ejiri Engneer
Έτος Project: 2007
Φωτογραφίες: Daici Ano

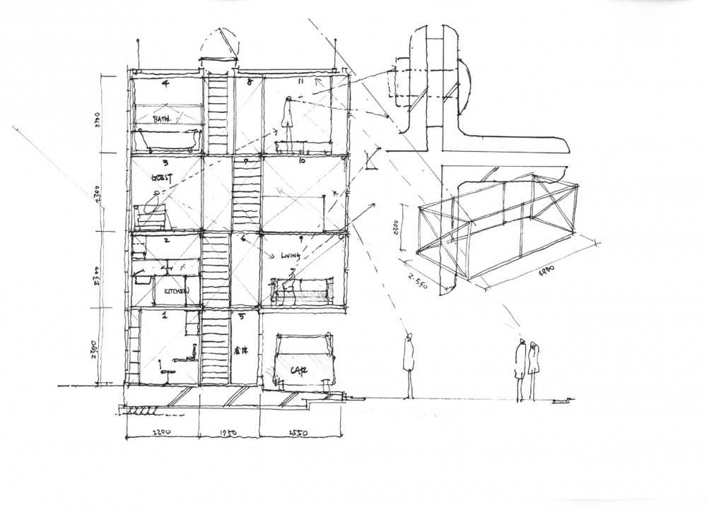
Ποιος ο στόχος; Να υπάρχει όσο περισσότερος χώρος. Και έτσι επιλέχθηκε η δομή που βλέπετε. Μια απλή κατασκευή με ένδεκα κουτιά από ατσάλι για τη βασική δομή, αλλά και εξωτερικά πάνελ.

Το δε μέγεθος των ‘κουτιών’ ήταν αρκετά συμμαζεμένο για να μπορεί κανείς να τα τοποθετήσει σε ένα φορτηγό.

Ακόμη και η εσωτερική σκάλα έχει ρόλο αντισεισμικού στοιχείου…

Έξυπνο, απλό.





Related posts

Στα άδυτα ενός απίστευτου hi tech microhaus

gadgetfreak
4 years ago

Orbit: ένα ρολόι που ‘φτιάχνει’ το προφίλ της ημέρας…

gadgetfreak
15 years ago

Μακάβριο… αλλά futurιστικό!

gadgetfreak
15 years ago
Exit mobile version