Αρχιτέκτονες: Colizza Bruni Architecture Inc. / James Colizza & Anthony Bruni
Τοποθεσία: Ottawa, Ontario, Καναδάς
Επιφάνεια: 111 sqm
Έτος Project: 2008
Φωτογραφίες: Peter Fritz
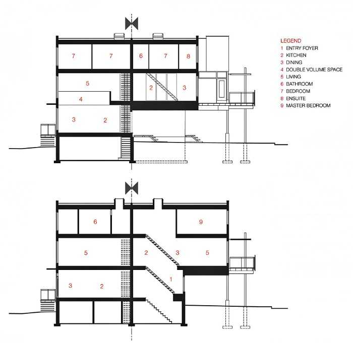
Αυτά είναι δύο σπίτια σχεδιασμένα στον ίδιο χώρο. Σχεδιάστηκαν από δύο διαφορετικά γραφεία και έχει ετοιμαστεί ένα σχέδιο ώστε να ‘ενσωματώνεται’ το ένα σχέδιο με το άλλο.
Κάθε σπίτι βλέπει στο δρόμο και κάθε μονάδα έχει το δικό της χαρακτήρα.
Η πρόκληση στο όλο project ήταν ο σχεδιασμός δύο μικρών και προσιτών σπιτιών με ένα πολύ στενό τμήμα χώρου. as to design two small and affordable homes for two separate. Έπρεπε να υπάρχει διαχωρισμός αλλά και να χρησιμοποιούνται οικονομικά υλικά με το budget να είναι περιορισμένο.
Η γειτονιά στην περιοχή αποτελείται από μια σειρά από σπίτια 19ου αιώνα, μια κοινότητα φιλική και αστική με compact περιοχές περιπάτου.
Σε τρία επίπεδα με υλικά νέα και διαφάνεια, πολύ φως σε ένα παιχνιδιάριο σχεδιασμό αλλά και κομψό. Αρχιτεκτονική με ουσία.
