Gadgetfreak :: Not Just Tech
design / architecture

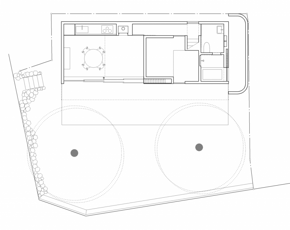
House in Ueda by Case Design Studio

house-in-ueda-case-design-studio

Δείτε μια εξαιρετική δουλειά στο Ueda Nagano της Ιαπωνίας με ένα απίθανο παράθυρο 10 μέτρων για να βλέπεις μια αγκαλιά οπωροφόρα δέντρα.

Related posts

Η προσπάθεια για ένα ‘έξυπνο’ μπαστούνι για άτομα με προβλήματα όρασης…

gadgetfreak
16 years ago

Zaha Hadid Architects 520 West 28th New York

gadgetfreak
7 years ago

Sony World Photography Awards 2021 – οι μεγάλοι νικητές

gadgetfreak
5 years ago
Exit mobile version