Μέσα σε ελάχιστο χρόνο ένα έξυπνο σχέδιο για την κατασκευή ΜΕΘ = intensive care units (ICUs) – από κοντέϊνερ τέθηκε σε εφαρμογή. Στόχος είναι φυσικά η βοήθεια στη μάχη κατά της COVID-19. Και η ταχύτητα με την οποία αυτό τελείωσε είναι συγκλονιστική. Μέσα σε λίγες ημέρες το αρχικό σχέδιο έγινε πρωτότυπο και αυτό μάλιστα εγκαταστάθηκε…
…σε ένα προσωρινό νοσοκομείο στο Τορίνο στην Ιταλία.
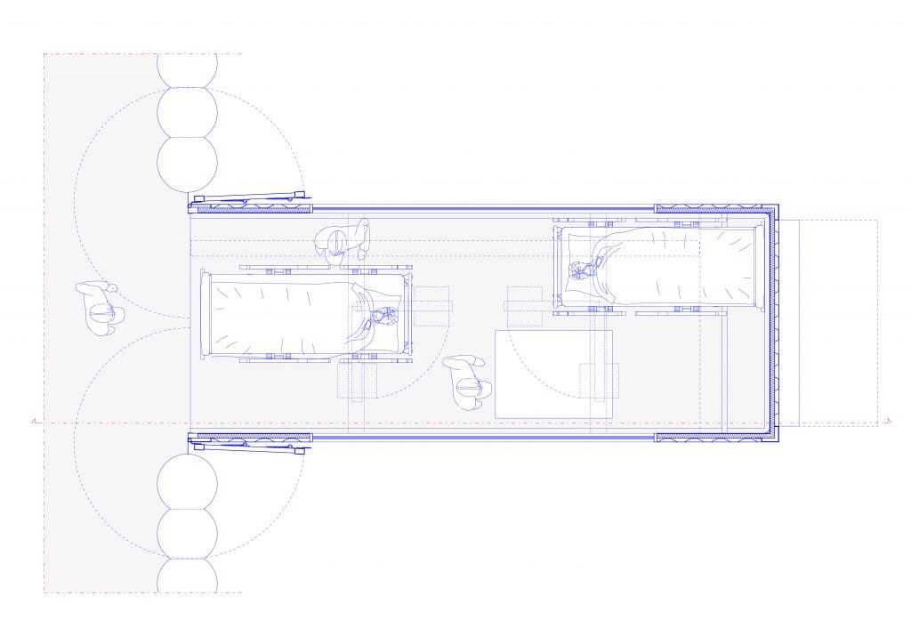
Κάθε CURA (Connected Units for Respiratory Ailments) έχει φτιαχτεί από ένα container. Ο ιδέα ήταν να λειτουργήσει αυτό το σχέδιο αντί για τις σκηνές και έτσι να μπορεί να υπάρχει μια μονάδα αρνητικής πίεσης (επιτρέπουν να εισέρχεται όχι όμως να εξέρχεται αέρας) και το όλο σύστημα να μεταφέρεται εύκολα.
Το ανέλαβε το ιταλικό αρχιτεκτονικό γραφείο Carlo Ratti Associati, μέσα στην ομάδα ήταν όμως και ο κ.Italo Rota, μια εταιρία μηχανολογίας με την ονομασία Jacobs, η ιατρική Philips, ενώ γραφίστες, γιατροί και άλλοι βοήθησαν με τη χορηγία της UniCredit.
Το πρώτο πρωτότυπο έχει μήκος 6.1 μέτρα όπως ένα κανονικό κοντέϊνερ και έχει δύο παράθυρα ώστε, όπως λέει ο αρχιτέκτονας της Carlo Ratti Associati, να μπορούν να δουν τον άνθρωπο τους οι συγγενείς. Τοποθετήθηκε σε ένα προσωρινό νοσοκομείο με 90 κρεβάτια για ασθενείς με COVID-19. Το κοντέϊνερ έχει όλα τα συστήματα για δύο ασθενείς σε ΜΕΘ και ήδη λειτουργεί εδώ και μερικές ημέρες.
Το πρόγραμμα CURA άρχισε στα τέλη Μαρτίου και 2,000 έχουν έρθει σε επαφή με την ομάδα για να συμμετέχουν. Και άλλες μονάδες CURA κατασκευάζονται σε σημεία του πλανήτη όπως ο Καναδάς και τα ΗΑΕ.
