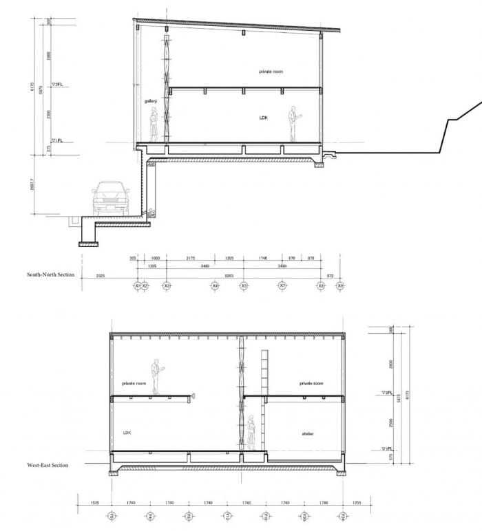
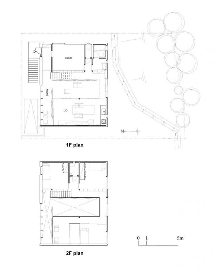
Το σπίτι αυτό σχεδιάστηκε για ένα ζευγάρι ηλικιωμένων και τα εγγόνια τους που κάποιες φορές μένουν μαζί τους. Βρίσκεται σε μια περιοχή κατοικιών που όμως είχε αναπτυχθεί πριν από 30 χρόνια και έχει μείνει το φυσικό τοπίο.
Έγινε μια προσπάθεια να επεκταθεί η εξωτερική τοπογραφία στο εσωτερικό. Αν σταματήσει το φως της ημέρας, το σχήμα των εξωτερικών τοίχων δημιουργεί μια ‘σχέση΄με τον τοίχο από πέτρες. Όλο αυτό προβάλλεται στην εξωτερική πρόσοψη.
Αρχιτέκτονες: Tadashi Yoshimura Architects
Τοποθεσία: Nara, Ιαπωνία
Χρονιά κατασκευής: 2008
Χώρος: 148 τ.μ
Φωτογραφίες: Hitoshi Kawamoto
Related posts
Categories
- android World
- cinemart / music / video
- comicmania / books
- computing / social media
- consumer electronics
- design / architecture
- ecotech / electric
- exhibitions
- faq / Infographics
- futuristas / iDea
- gadgetfreak taste
- gadgets / stuff
- gaming / fun
- iOS World
- legends / special
- men's world
- military / aviation
- mobile / smartphones
- space talk
- tablets / multimedia
- tech talk / science
- transport / concept








