Αρχιτέκτονες: Travis Price – Travis Price, Patrick Swift
Τοποθεσία: Oakland, ΗΠΑ
Υπεύθυνος Σχεδίου: Diego Balagna
Χρονιά: 2010
Φωτογραφίες: Kenneth M. Wyner
Η κατοικία Salop/Gelman είναι ένα σπίτι που δύσκολα θα συναντούσαμε στην Ελλάδα. Κι όμως, τόσο άνετο και ‘αέρινο’…
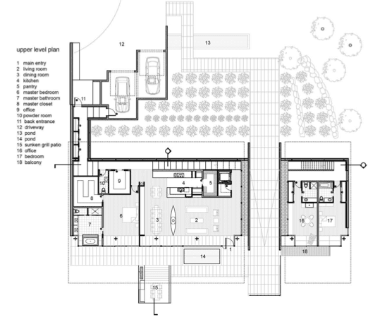
Κοιτά τον ποταμό Potomac River πάνω από μια λίμνη κατασκευασμένη από τον άνθρωπο και σαν βασικό σημείο αναφοράς είναι ένα μονοπάτι κήπου ανάμεσα στα δύο τμήματα. Η φύση είναι και το κλειδί…

Στη μια πλευρά ένα μεγάλο καθιστικό, η τραπεζαρία και η κουζίνα όπως και τα κυρίως υπνοδωμάτια, στην άλλη και απέναντι από το μονοπάτι, 3 ακόμη κρεβατοκάμαρες και ένα γραφείο. Όλο το σπίτι είναι και μια αντανάκλαση από τα ασημένια σύννεφα που απεικονίζονται από τους γύρω λόφους.

Μια ιδιόμορφη οροφή, παθητική λήψη ηλιοφάνειας και ζεστό νερό από τον ήλιο, στο εσωτερικό ξύλο και βουρτσαρισμένο αλουμίνιο. Μια ecoφιλική κατασκευή…




Related posts
Categories
- android World
- cinemart / music / video
- comicmania / books
- computing / social media
- consumer electronics
- design / architecture
- ecotech / electric
- exhibitions
- faq / Infographics
- futuristas / iDea
- gadgetfreak taste
- gadgets / stuff
- gaming / fun
- iOS World
- legends / special
- men's world
- military / aviation
- mobile / smartphones
- space talk
- tablets / multimedia
- tech talk / science
- transport / concept


